Programme « Terre d’Orchidées »

Ville

Fontenay-le-Comte

Surface

À partir de 62.33 m2

Nbr de pièces

Du T3 au T4

Prix

À partir de 154470

Nous contacter

Descriptif

Aide exceptionnelle de 8 000 € de la Communauté de Communes Pays de Fontenay Vendée, sous réserve d’éligibilité et d’acceptation du dossier *

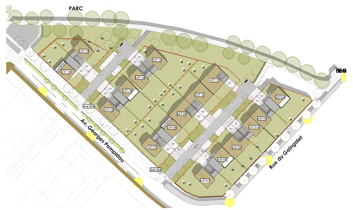
Axeliha vous propose de devenir propriétaire d’une maison à Fontenay Le Comte avec notre nouveau programme « Terre d’Orchidées ».

Situé à environ 1h des plages de la côte Vendéenne entre La Roche sur Yon, La Rochelle et Niort, Fontenay Le Comte est une commune attractive et dynamique.

Cet ensemble immobilier se trouve en périphérie de la ville, vous pourrez ainsi profiter d’un cadre de vie bucolique tout en ayant, à proximité immédiate, l’ensemble des commodités.

Les maisons possèdent toutes un jardin, un garage et une place de parking. Nous vous proposons des maisons T3 en rez-de-chaussée et des maisons T4 en R 1 comportant deux salles de bain.

Le chauffage et la production d’eau chaude seront assurés par une pompe à chaleur pour les maisons, et par ballon thermodynamique et chauffage électrique pour les appartements.

Les constructions respectent la règlementation énergétique 2020 (RE2020).

Notre équipe commerciale se tient à votre entière disposition pour vous accompagner et vous conseiller.

Caractéristiques du programme

Référence

Terre d’Orchidées

Type de bien

Maison

Surface habitable :

À partir de 62.33 m2

Nombre de pièces :

Du T3 au T4

Nombre de lots :

17

Points d’intérêt à proximité

Combien me coûtera ce bien chaque mois ?





Estimation
par mois
Montant emprunté
Coût des intérêts

Nos biens similaires